For Sale

$279,900

2000 SNIDER ROAD , Port Colborne (Bethel), Ontario L3K5V5

Remarks

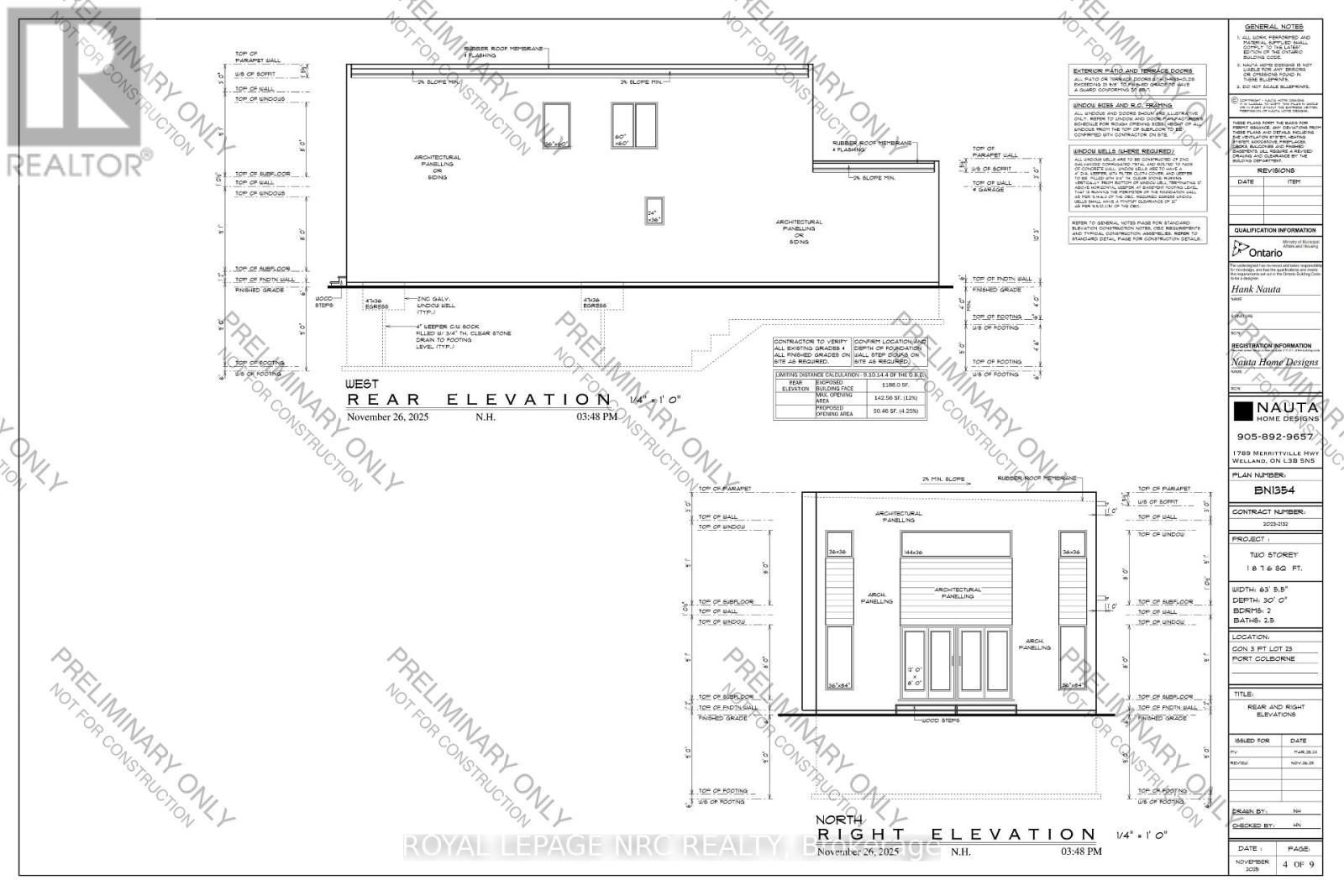
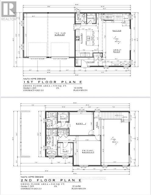
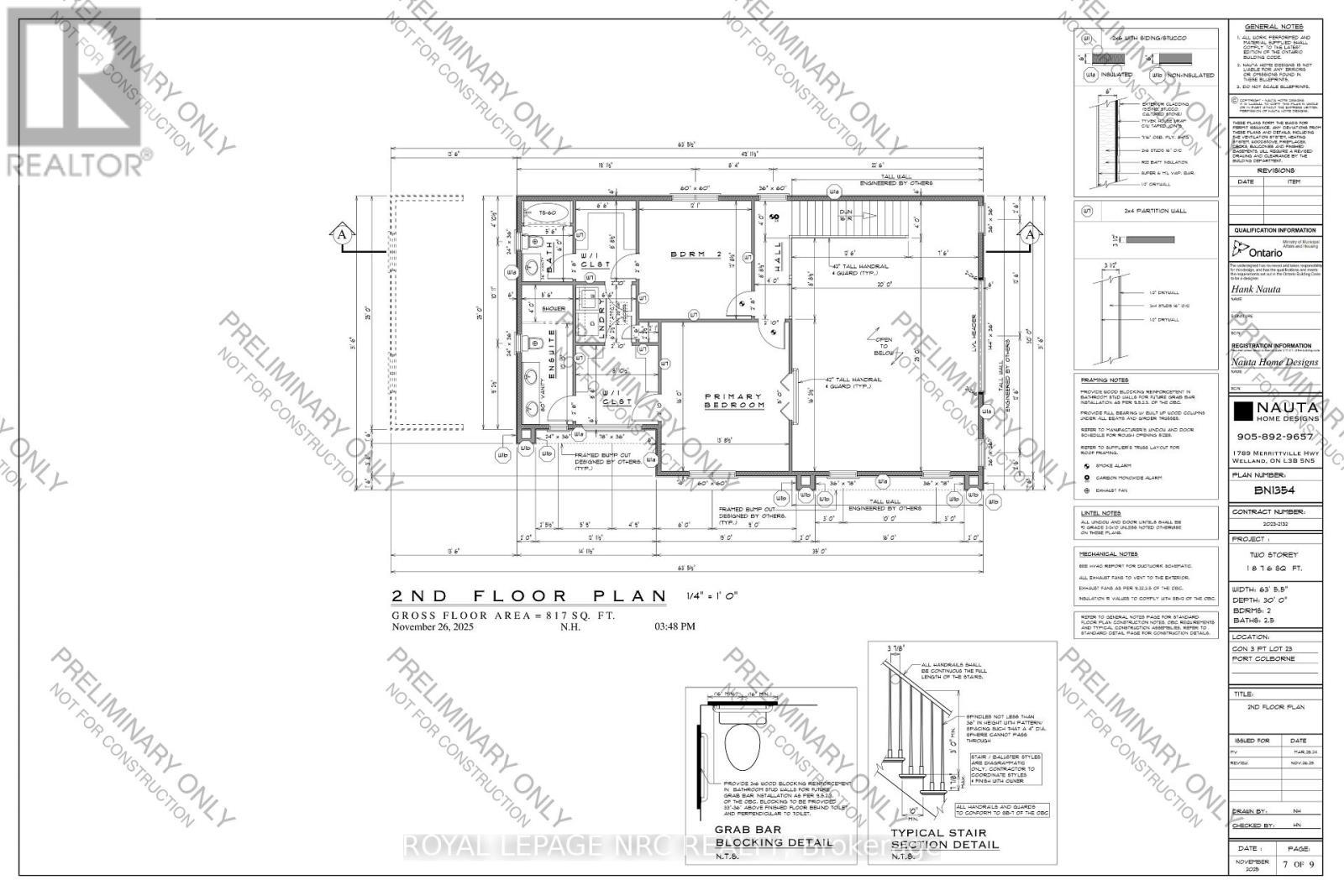
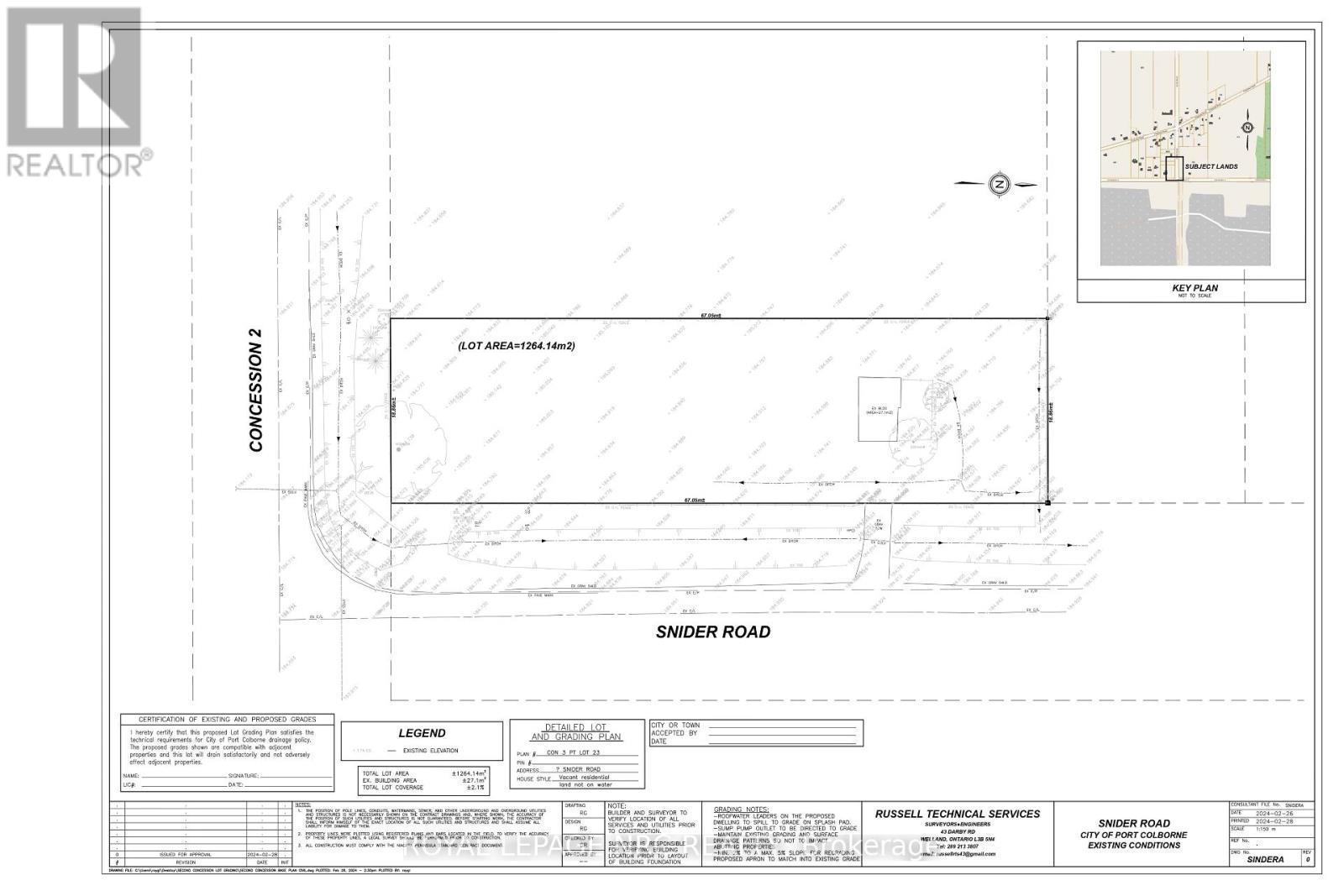
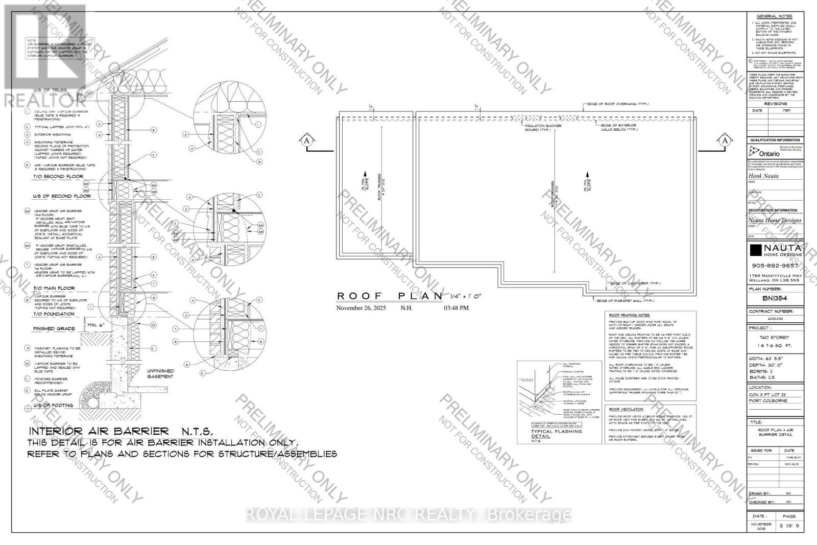
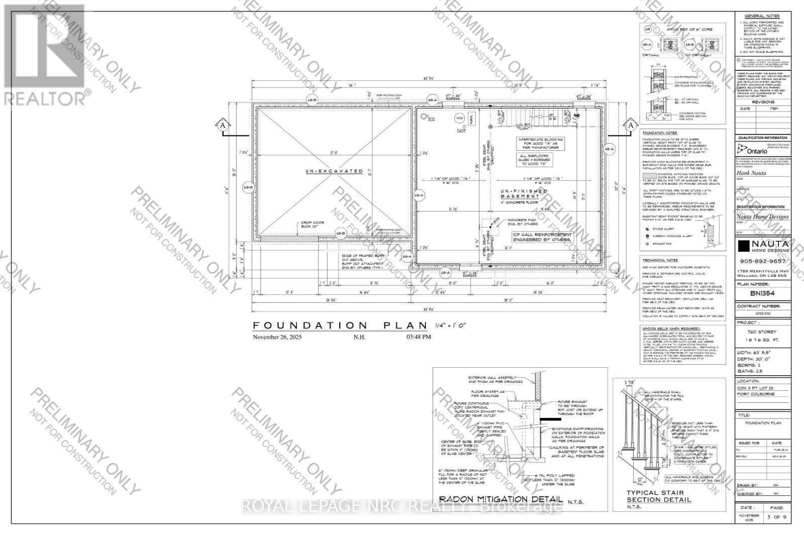
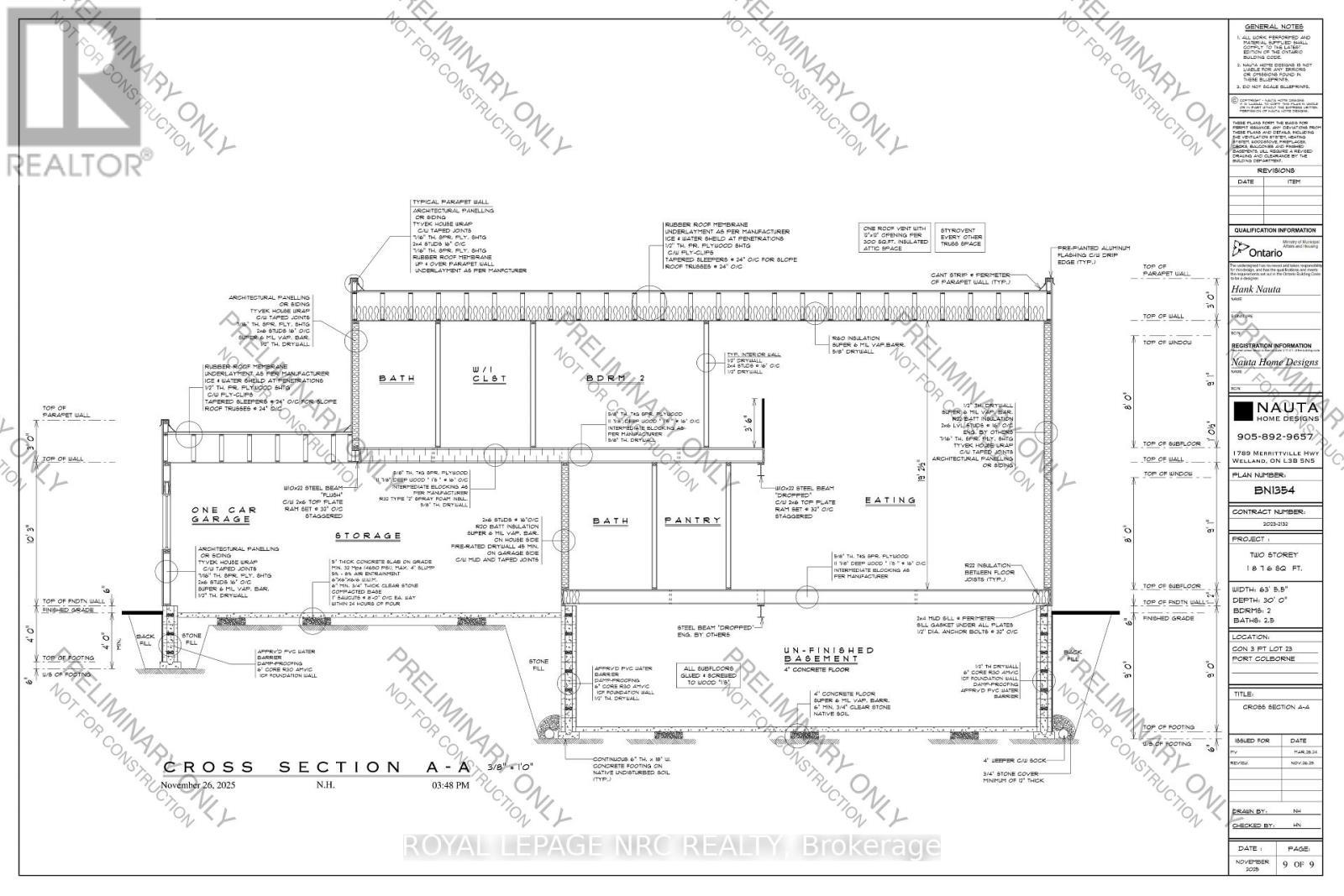
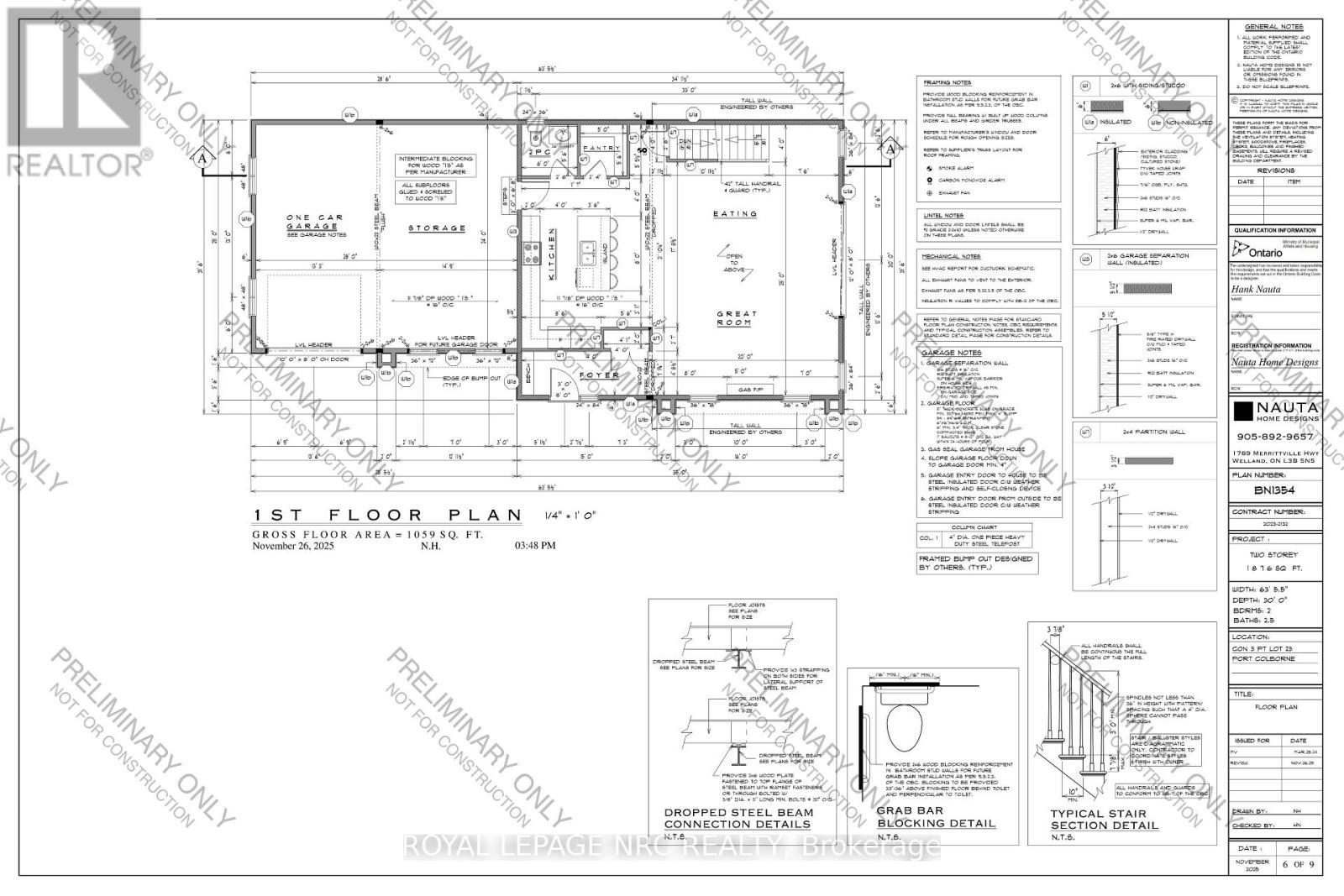
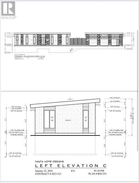
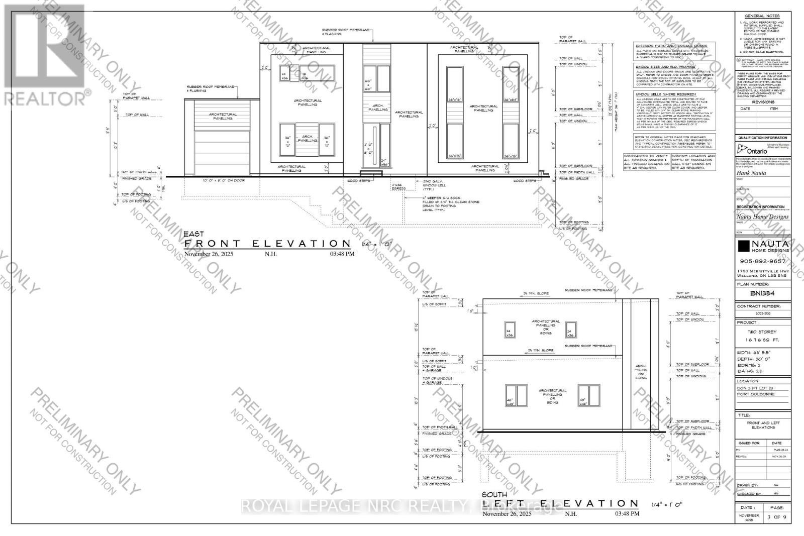
** TO BE BUILT** Build Your Dream Home in the Peaceful Hamlet of Bethel, Port Colborne OR Build with the Seller at $950,000. Discover the perfect opportunity to create your dream home in this tranquil rural community. This vacant lot, measuring 200' x 63', offers a serene setting surrounded by picturesque farmland, forest, and a horse farm-the ideal backdrop for country living at its finest. This property is ready to build, complete with an approved 2 storey or bungaloft open loft floor plan created by Nauta Home Designs with a single or double garage. The thoughtfully crafted 1,778 sq. ft. layout features two spacious bedrooms, both w/ensuite bathrooms, and a double car garage. The open-concept design highlights a bright and inviting main floor with a seamless flow between the kitchen, dining, and great room, 2 pc bath and soaring ceilings-perfect for both relaxation and entertaining. Enjoy the peace and privacy of rural life while being just a short drive to Port Colborne's amenities, beaches, and the Welland Canal. Whether you're looking to build your forever home or a tranquil getaway, this beautiful lot and ready-to-go home plan offer a rare and exciting opportunity in a truly picturesque country setting. Septic approval, minor variance, archeological study and drawings completed. . (id:27)

Property Summary

  • Neighbourhood: 873 - Bethel
  • Lot Frontage: 220.6 Feet
  • Lot Depth: 62 Feet
  • Lot Size: 220.59 x 62.04 FT
  • Zoning: RU

Property Features:

  • Features:
    Wooded area , Partially cleared
  • Fence Type:
    Fenced yard
  • Property Type:
    Vacant Land
  • Utility Type:
    Cable - Available
  • Utility Type:
    Hydro - Available
Lifestyle
Neighbourhood Info

Get More Info

Book a tour