For Sale

$1,095,000

82 Peregrine Way, Vernon, BC V1H 1E4

4 Beds 2+1 Baths

Remarks

Charming executive 4-bedroom 4-bathroom home located in the private and tranquil Adventure Bay. Absolutely stunning views of Okanagan Lake. Open concept kitchen and living area with granite countertops/island. A large 17 ft X 12 ft deck and garage are some of the many great offerings of this home. This home is spacious with a modern layout, and the property has its own access to the private beach in Adventure Bay. Available beach access card with a yearly fee. Located 21 min to Shopping malls and grocery stores, 46 min to Kelowna International Airport.

Property Summary

  • Annual Tax Amount: $4,626.00
  • Lot Size: 0.435 Acres
  • Floor Space (approx): 2276 Square Feet
  • Built in: 2017
  • Bedrooms: 4
  • Bathrooms (Total): 2+1

Property Features:

  • Architectural Style:
    Two Story
  • Cooling:
    Central Air
  • Heating:
    Forced Air
  • Parking Features:
    Attached , Garage
  • Sewer:
    Public Sewer
  • Water Source:
    Community/Coop

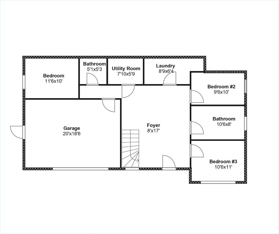
Rooms

  • Foyer:
    Level: Lower
  • Bedroom:
    Level: Lower
  • Bathroom:
    Level: Lower
  • Bedroom:
    Level: Lower
  • Laundry:
    Level: Lower
  • Utility:
    Level: Lower
  • Bedroom:
    Level: Lower
  • Ensuite Bathroom:
    Level: Main Level
  • Master Bedroom:
    Level: Main Level
  • Bathroom:
    Level: Main Level
  • Dining:
    Level: Main Level
  • Living:
    Level: Main Level
  • Kitchen:
    Level: Main Level
Lifestyle
Neighbourhood Info

Get More Info

Book a tour